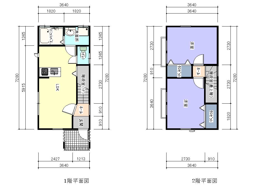
狭小土地にも最適な南欧風住宅「アルル」
都市部の狭小住宅地にも、別荘地の自然豊かな土地にも合う南欧風住宅「アルル」です。
単身者やご夫婦だけの住宅プランとしてオススメします。
現在は賃貸生活の方もご自分の「家」がお持ちになれます。
セカンドライフ用の田舎住宅としてもおしゃれでお手頃価格にて建てることができます。
建物本体は下記の仕様が付いて完成します。
金額は材料高騰に付き詳細はお問合せください。

この画像は清里の売り地に建築した場合のイメージです。






ヤマトホーム
TEL 0551−32−1105/ FAX 0551−32−1106