週末は家庭菜園を楽しむ「里山の家」ysl-18
ロシアでは金曜日の夜になると、あちこちの街から郊外へ向かう自動車の列が数多く見られます。
行き先は家庭菜園付きのセカンドハウス「ダーチャ」へ向かうのです。
そこで人々は菜園の土いじりをして野菜や果物を栽培し、家族が食べる1年分の食料を作るのです。
また周辺の野山を散策したり、テラスでお茶を楽しんだりしてゆっくりと過ごします。
夏の期間中は仕事を持つ現役の方は週末を、年金受給者の方は常に「ダーチャ」で過ごすのが一般的のようです。
ロシア人1人当たりの国内総生産(GDP)は約140万円くらい、所得という物差しでみると日本の約30%くらいでとても豊かとは言い難い。
もし世界的な気候変動や国際関係悪化で食料の輸入が減少したとしたら?ロシアは1985年以降、何度も経済危機に見舞われたのに餓死者が出なかったそうです。
それは国内3400万世帯の8割が「ダーチャ」など菜園をもっていたので、ジャガイモの国内生産量の9割、野菜生産量の8割を自給していたからと言われている。
(西日本新聞 生活面から抜粋)
「永住型-田舎暮し用企画住宅」田舎暮し用に最適な平屋住宅の紹介です。
シンプルでモダン、使いやすくコストを抑えたエコ住宅。
建物の構造はツーバイで平屋建て。屋根はガリバニウム鋼板葺き。外壁は窯業系サイデング張り。
断熱材はポリスチレンフォーム。窓はペアガラス仕様。
老後の永住も考えている方の8割が平屋住宅を希望しています。

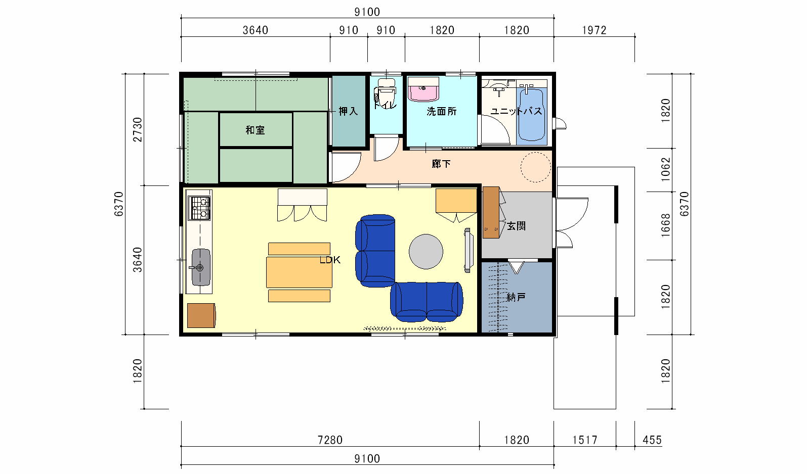
コンパクトでローコスト住宅「里山の家」間取り図

田舎暮し用住宅を探している。都会と田舎で二地域居住をしたい。
古民家だと修繕費が新しく建てるほどかかってしまう。
夫婦ふたりだけなので大きな住宅は必要ない。
将来のことを考えるとできるだけコストを抑えた住宅が欲しい。
そのような方にお薦めです。
土地と「里山の家」ysl-18をセットで販売します。(建築条件付き売地) 材料費高騰のため金額の詳細はお問合せください。
設備工事で別途費用負担があります。詳細はお問い合わせください。
ヤマトホーム
TEL 0551−32−1105/ FAX 0551−32−1106